
If you’re ready to build your dream house in the country, modular homes are a great choice. The off-site construction methods make them a cost-effective option for rural builds, and the flexible designs means there’s a floor plan to suit every style, need and budget.
Over the years we’ve completed some amazing projects in rural locations. From idyllic bush retreats, to impressive homes with even better views, our designs are easily customisable to match your location and needs. So in this article we’ve gathered together three of our favourites.
All three homes are unique in style, and it’s clear that they fit our clients’ families and lifestyles to a T – and they're sure to provide plenty of ideas and inspiration for your own project too!
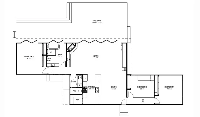
Buxton, Yarra Valley, Victoria

The stunning Buxton project has been carefully designed and positioned to enjoy the picturesque views of the surrounding Yarra Valley from every angle. From the beautifully appointed living zone you are drawn to the outdoors through bi-fold doors that run the full length of the room, opening out to the inviting open air deck.

The house itself includes many thoughtful features that add a sense of luxury and style, including the wall mounted fireplace and customised window seat, creating a relaxed ambiance that is the perfect fit for the peaceful location.
The bedrooms include large picture windows, allowing you to take in the scenery as you rise, and the bathroom’s bi-fold doors give you the option to bring the outdoors in as you enjoy a soak.

Design: Hampton 14 (modified)
Features: Bi-fold doors, sunny deck, wall mounted fireplace.
Floorplan: Pictured below

Daylesford, Spa Country, Victoria

Making a striking statement against the natural bush that surrounds it, the Daylesford project is a wonderful example of rural luxury living at its best. Every part of the home has been meticulously planned and executed, with countless stylish touches throughout that create a stylish modern vibe.

The two-storey design includes four bedrooms, three bathrooms and plenty of living space for a large family to live in harmony. Upstairs the bedrooms and second living room enjoy elevated views through the trees, creating a real sense of peace that is just right for the natural beauty of the surrounding Spa Country.

Design: Barwon (customised)
Features: Modern appeal, built to BAL 29, luxury features throughout.
Floorplan: Pictured below

Yarck, Upper Goulburn Valley, Victoria

With its elevated position high on a hill, the Yarck project is another stylish, serene country home that is a joy to be in. The picture windows in the living area and bedrooms take in the gorgeous surrounding views, and the open deck is the ideal place to soak up the serenity as you enjoy relaxed alfresco dining or a glass of wine.

This beautiful home includes some clever features that take it to the next level, including built-in fireplace, stylish geometric splashback and luxurious bathroom. The result is a modern, stylish and comfortable rural retreat that our clients absolutely love.

Design: Hampton 16
Features: Picture windows, built-in fireplace, geometric tiled splashback.
Floorplan: Pictured below:

Be inspired to escape to the country

Today, more and more people are making the call to move to the country to escape the hustle and demands of city living – and we’re loving the chance to help bring their vision of a modern rural retreat to life!
If you’d like to discuss your ideas for your new home, get in touch with our team. From concept and designs, to permits and construction, to delivery and installation, we take care of it all!
