Back to News and Insights
Article

Client Testimonial:  Newhaven Design, Cranbourne South, VIC

Projects

December 07, 2023

Written by
Alana McNab

We’re excited to reveal our newest modular home project in the heart of Cranbourne South. Here we showcase the impeccable design of the Newhaven 19 (with garage), meticulously tailored for our clients Sue and David.

Seeking to realise their vision of an ideal retirement retreat, they chose to partner with Tachos House to turn their dream into a reality. The result is a beautifully crafted residence poised to stand as a testament to quality and sophistication for years to come.

Curious to know more about how we crafted Sue and David's dream modular home? Keep reading...

Our Client's Building Journey

Tachos House testimonial

Sue and David's journey with Tachos House kicked off with a crucial decision - the design. They selected our Newhaven 19 with a garage, a 3-bedroom design that perfectly suited their downsizing plans without compromising on space.

“The Newhaven house, or homestead that we have, was what really brought us to Anchor in a big way” – Sue & David

Having lived in their new Anchor Home for over two years, they are thrilled with the outcome. The decision to build on the same block as their family allowed them to enjoy their own space while cherishing moments with their children and grandchildren.

“We really enjoyed working with Anchor” – Sue & David

Today, both Sue and David share joy in developing a beautiful landscape around their Anchor Home, reflecting their passion for gardening and spending time outdoors. In their testimonial, they express the great experience they had while building their home with us and highlight our commitment to delivering on time and under their original project budget.

Extraordinary Exterior 

Modular Home by Tachos House

The exterior of this showcases Weathertex Weathergroove Smooth cladding in the elegant shade of Dulux's 'Paving Stone.' These two exterior selections contribute to a contemporary and refined aesthetic, seamlessly blending the home with the natural surroundings of gum trees and the beautiful garden space.

The inclusion of a double garage was a key element in the design, expertly constructed on-site by our team after installing the house modules. To further support sustainable living, we also integrated a 10,000L rainwater tank.

Modern hours design

To enhance their outdoor living experience, Sue and David also opted for a decking and verandah area. The Merbau decking adds warmth and charm, providing an inviting space for outdoor dining and relaxation.

Style Meets Functionality

Interior design Australia

The kitchen, often considered the heart of any home, is no exception in Sue and David's beautiful home. Contemporary matte black fixtures harmonise with the classic Hampton-style cabinetry finished in 'oyster grey' matte, resulting in a sophisticated blend of aesthetics. The Calacatta Combo benchtop and splashback from YDL Stone add a touch of luxury with contrasting dark brown and grey veins.

Equipped with Westinghouse appliances, including an oven, hotplate, and rangehood, the kitchen seamlessly blends style with practicality. A walk-in pantry ensures ample storage, while vinyl planks from Karndean in the colour Ignea add warmth underfoot.

Kitchen design

The living space is characterised by beautiful raked ceilings and large windows that flood the area with natural light. The doors open up to invite refreshing breezes, and additional ceiling fans were installed to enhance cooling efficiency, creating a comfortable and inviting atmosphere.

Contemporary Bathrooms 

Bathroom design

The Newhaven 19 design incorporates two bathrooms - an ensuite and a main bathroom. The main bathroom features a freestanding bath and shower, perfect for all families. In contrast, the ensuite boasts a walk-in shower and a heated towel rail for added comfort.

The choice of Laminex's Classic Oak for the vanity in both bathrooms contrasts elegantly with the Belga Grey Tiles from Beaumont Tiles, showcasing a wonderful mix of textures and colours.

Spacious Bedrooms, Bright Study Area

Bedrooms

Boasting three spacious bedrooms and one airy and bright study/retreat room, the Newhaven 19 is perfect for all types of families. 

The master bedroom enjoys plenty of privacy in the separate wing complete with an ensuite and walk-in robe. Pendant light fittings above the bedside tables not only introduce a stylish touch but also contribute to preserving valuable space.

Lounge In the study area, the large gable window becomes a focal point, framing the picturesque garden and allowing natural light to fill the space. This design element not only enhances the ambience of the room but also provides an inspiring view that adds character to the workspace.

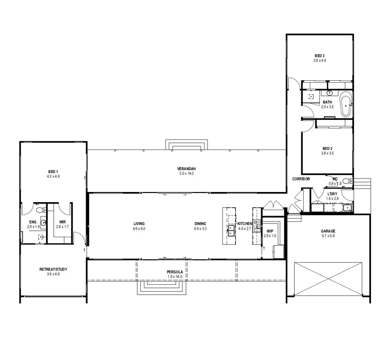
The Floorplan

FloorplanThe Cranbourne South Project Floorplan

The Newhaven 19 (with garage) floorplan was modified to swap the two wings of the home, enhancing the flow and functionality. The removal of the entryway on the original design further refined the floorplan, creating a seamless transition between spaces.

Over to you...Exterior

In concluding Sue and David's Anchor Home journey, we take pride in the satisfaction they've expressed with the final result. Their happiness is a testament to our commitment to delivering modular homes that exceed expectations.

If this project has inspired you and sparked the dream of building your own modular home, we invite you to reach out to us.

By submitting an enquiry on our website, our dedicated team will be able to provide helpful information and guide you through the exciting process of bringing your dream home to life. We look forward to hearing from you!

Contact us

Ready to talk about your own project?

Get expert advice from one of our consultants to help you find your ideal home

Enter search term below