Article
Focus On: The Hampton Modular Home Range
Modular designs
April 27, 2019
Written by
Laurie Raikes
If you’re looking for a modular home that ticks all the boxes, the Hampton range should definitely be on your list. From the stunning modern exterior to the functional floorplan, each of our Hampton designs includes features that everyone in your family will love.
Whether you’re after a smaller home to enter the market or a large permanent residence or holiday house, there is a Hampton design to suit your needs and budget.
In this article, we’ll share the standout features of the range, as well as showcase each of the four unique Hampton designs, to help you find the perfect fit.
Highlights Across the Hampton Range
All of the Hampton designs include the cubehaus facade as standard, which brings a modern and stylish look to the exterior. This also allows for 9ft level ceilings throughout the entire home, which adds a spacious feel and a touch of luxury to every room.
Another highlight across the range is the central living zone which is square in shape. While this may not stand out too much on the floorplan, it feels roomy, spacious and provides the ideal place to relax and unwind. This is in contrast to many other new-home designs that include a longer, narrow living space, which can have more of a ‘passage way’ feel.
Each of the four floorplans includes a U-shape kitchen complete with island bench and walk-in pantry. There is also the option of adding a large deck that wraps around the living zone to the front door, creating a welcoming entrance and a nice spot to enjoy the outdoor surrounds.
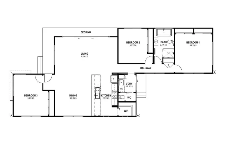
Hampton 19 (4-bedroom 2-bathroom)

.png)
The largest home in the range, the Hampton 19 is spacious enough to comfortably accommodate big families or holiday groups. It includes four bedrooms, a large laundry, plus all the features of the other Hampton floorplans.
Our Metung project is a great example of smart customisations of the design. Our clients opted to change the position of the kitchen, as well as the ensuite and walk-in robe. They also decided to use bedroom 2 as a rumpus room, which adds a second living space that is ideal for families.
The addition of a large deck overlooking the water is a definite highlight. The dimensions of the standard design are 30.2 x 9.3m and the area is 175.7m2. If you’re looking for a large, modern home that is adaptable to your needs, the Hampton 19 is an excellent choice.
Hampton 16 (3-bedroom 2-bathroom)

.png)
For those looking for a touch more space, the Hampton 16 is a great option. With all the inclusions of the Hampton 14 and 12, this design also includes an ensuite and walk-in robe to bedroom 1.
The Taradale Project is a great example of how we customised the Hampton 16 design to meet our clients' personal style and lifestyle preferences. They chose to to incorporate upgrades such as matte black fixtures and fittings, a freestanding bath and timber windows.
Another difference is that unlike the Hampton 14, the main bedroom is located in a separate wing of the house, which makes it an ideal parent’s retreat. With dimensions of 24.9m x 9.3m and an area of 150m2, the Hampton 16 delivers ample space for families both as a permanent residence and holiday rental.
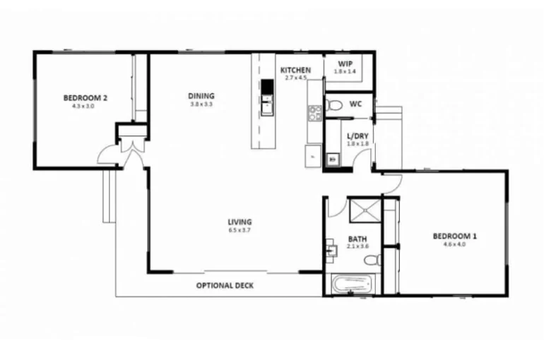
Hampton 14 (3-bedroom 1-bathroom)

.png)
One of our most popular designs, the Hampton 14 includes all the features of the Hampton 12, with the inclusion of a third bedroom. This makes it a stylish and affordable option for small families, as well as a beautiful holiday home.
You can see the Hampton 14 design in our Melbourne display centre, complete with finishes and fittings chosen from our standard range and well-chosen upgrades to add a touch of class.
Our stunning Buxton project also showcases how the Hampton 14 design can be customised to suit the needs of your lifestyle and location. With an area of 131.6m2 and dimensions of 20.8m x 9.3m, you’ll find plenty of value in the Hampton 14.
Hampton 12 (2-bedroom 1-bathroom)

The smallest home in the range is the Hampton 12. The two bedrooms are located at opposite ends of the house for privacy, and both include built-in robes. The bathroom is a good size, and there is also a second toilet situated behind the laundry.
The dimensions are 17.9m x 9.3m, and the total area is 117.3m2, making it one of our larger two-bedroom options. This design is well suited to couples buying their first home, retirees who are downsizing or to anyone looking for a compact holiday home.
Modern, Stylish and Flexible to Suit Your Needs and Budget
The Hampton range is a favourite amongst our clients and it’s easy to see why. The modern facade, high ceilings, spacious living zone and four design options gives the range a wide appeal. On top of this, all four Hampton designs offer plenty of value and the flexibility to customise the designs to create your dream home.
If you'd like to know the pricing details for our Hampton range, please feel free to download our price guide.

Over to You
Do you have a question about our Hampton range? We’d love to hear from you! Simply post a comment below or get in touch with our team on 03 5145 7110.
