Article
Brand New Display Homes Coming Soon To Stratford
Modular designs
June 09, 2023
Written by
Alana McNab
We're excited to unveil the selected designs for our highly anticipated new display homes at our Stratford location. Prepare to be captivated by the Avoca 12, an exciting new addition to our range, as well as the ever-popular Aspendale design.
At Tachos House, our unwavering dedication lies in creating exceptional spaces that ignite inspiration and elevate your lifestyle. Get ready to embark on a thrilling new chapter in modular home design as we push the boundaries of innovation, inviting you to witness firsthand the seamless integration of style and functionality.
New Display Home #1- The Avoca 12
.jpg)
Introducing our latest design that is guaranteed to catch your attention! The Avoca 12 combines timeless elegance with contemporary elements, delivering the best of both worlds. This home's captivating facade is simply stunning, catching the eye of anyone passing by. Inside, the living area features a raked ceiling that adds to the sense of openness and floods the space with an abundance of natural light.
The Avoca 12 offers two façade options for selection. The first is the Standard Gable, providing a simpler appearance and the freedom to choose personalised upgrades to best suit your individual style.
The second option is the Hamptons façade upgrade (as pictured above). This is the perfect choice for those desiring enhanced aesthetic appeal and character, all conveniently bundled together in one upgrade.
The Hamptons façade upgrade includes the following:
- Double Aluminium French Doors x 2
- Upgraded Front Door & Handle
- Fretwork with Cement Sheet backing
- Painted Timber Window Trim and Ledges (included to 3 sides of the home)
- Additional Area to Home (1.8m2)
- Additional Gables x 2
- A Portico
- Unlined Skillion Verandah
- Stacked Stone Piers
- 90mm Merbau Decking
- 180mm Linea Cladding to all External Walls

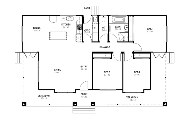
Ideal for small families, couples, or retirees, this three-bedroom home offers a perfect fit. However, if you require more space without compromising on style, we have great news for you! We have made the decision to expand our Avoca range to include the Avoca 14 and Avoca 18. These floorplans will best suit larger families or those looking for additional space to better suit their individual needs and lifestyles.
Both the Avoca 14 and 18 will be available in either the Standard Gable and Hamptons façade.
Avoca 12 Floorplan (Hamptons Façade)
To get a real feel for this new design we are bringing the Avoca 12 to life at our Stratford location as a display home! We will be showcasing this design with the beautiful Hamptons façade which will allow those who tour the home to get a real feel for the overall look in person. We are so excited for everyone to visit and witness this amazing design firsthand!
To discover the base price of the new Avoca 12 and our entire modular home design range, download our price list today.
New Display Home #2- The Aspendale
.jpg)
Prepare to be thrilled by our second highly anticipated addition to our Stratford display homes: The Aspendale Design.
Unveiled just last year, this modern house design has soared in popularity, and its allure is undeniable. With its sleek lines, contemporary aesthetic, and practical layout, it has become a beloved choice among our clients. We can’t wait for you to step inside the Aspendale and be amazed!

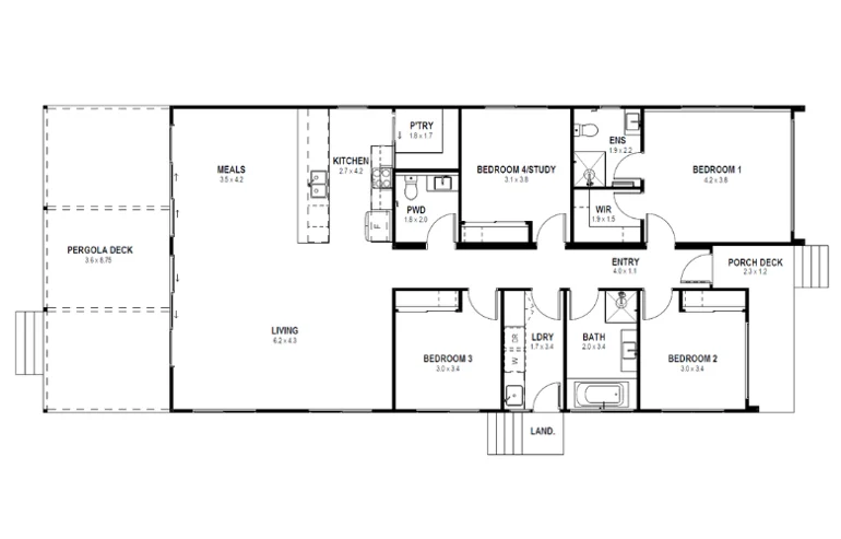
This four-bedroom home is truly a showstopper. The open-plan living area boasts a spacious layout, providing the perfect setting for relaxation and entertaining. This room is bathed in ample sunlight in the daytime, accentuating the exquisite finishes and creating an inviting ambience.
With its high ceilings, the Aspendale exudes an airy and grand atmosphere, making every moment spent within its walls truly exceptional.

The master suite serves as a sanctuary of tranquillity, offering generous bedroom space, a walk-in wardrobe and a luxurious ensuite. The additional three bedrooms provide ample room for family members or guests, with each room meticulously crafted to maximize both comfort and functionality.
Aspendale Floorplan
Tour Our Current Display Homes
.png)
While under construction, you can still visit our Stratford location to speak to a project consultant and witness the transformation of these remarkable display homes. We encourage you to come and experience the excitement firsthand as both modular homes take shape.
In the meantime, if you're eager to explore our existing display homes, our Bayswater location is open for viewing both our Shoreham 14 and Hampton 14 modular home designs.
Arrange a tour with us today to discover the possibilities for your new modular home.
Follow Us For Updates
.png)
Stay up-to-date with the construction progress of our display homes by following us on Facebook and Instagram. We'll share exciting updates, behind-the-scenes glimpses, and exclusive sneak peeks, ensuring you're the first to know when these stunning homes are ready for viewing.
Over To You
Do you have a question about the new display homes or the new Avoca 12 design? We’d love to hear them! Please get in touch via our contact page, commenting below, or by calling our office on 03 5145 7110.
