Aspendale Display Home, Stratford

Aspendale Display Home, Stratford

Victoria

Design: Aspendale
View design
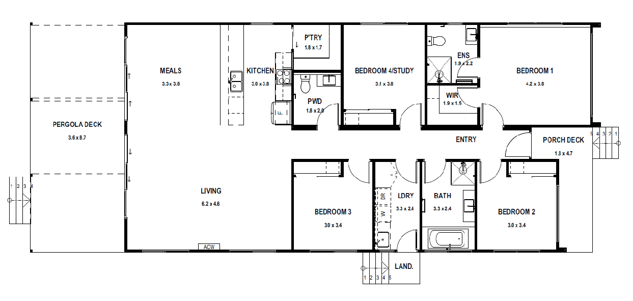
Bedrooms

4

Bathrooms

2

Area

148sqm

Located at our Stratford location, the Aspendale display home was designed with modern families in mind. This home features four bedrooms and two bathrooms, with an impressive living zone at the rear of the home which opens out to the optional decking area. With flexible design features and a luxurious look and feel, Aspendale stands as a firm favourite among families and those seeking to build a holiday home.

{{item.name}}
Aspendale Display Home, Stratford
Aspendale Display Home, Stratford

Ready to talk about your own project?

Get expert advice from one of our consultants to help you find your ideal home

Enter search term below