Four Bedroom - Rye

Four Bedroom - Rye

Victoria

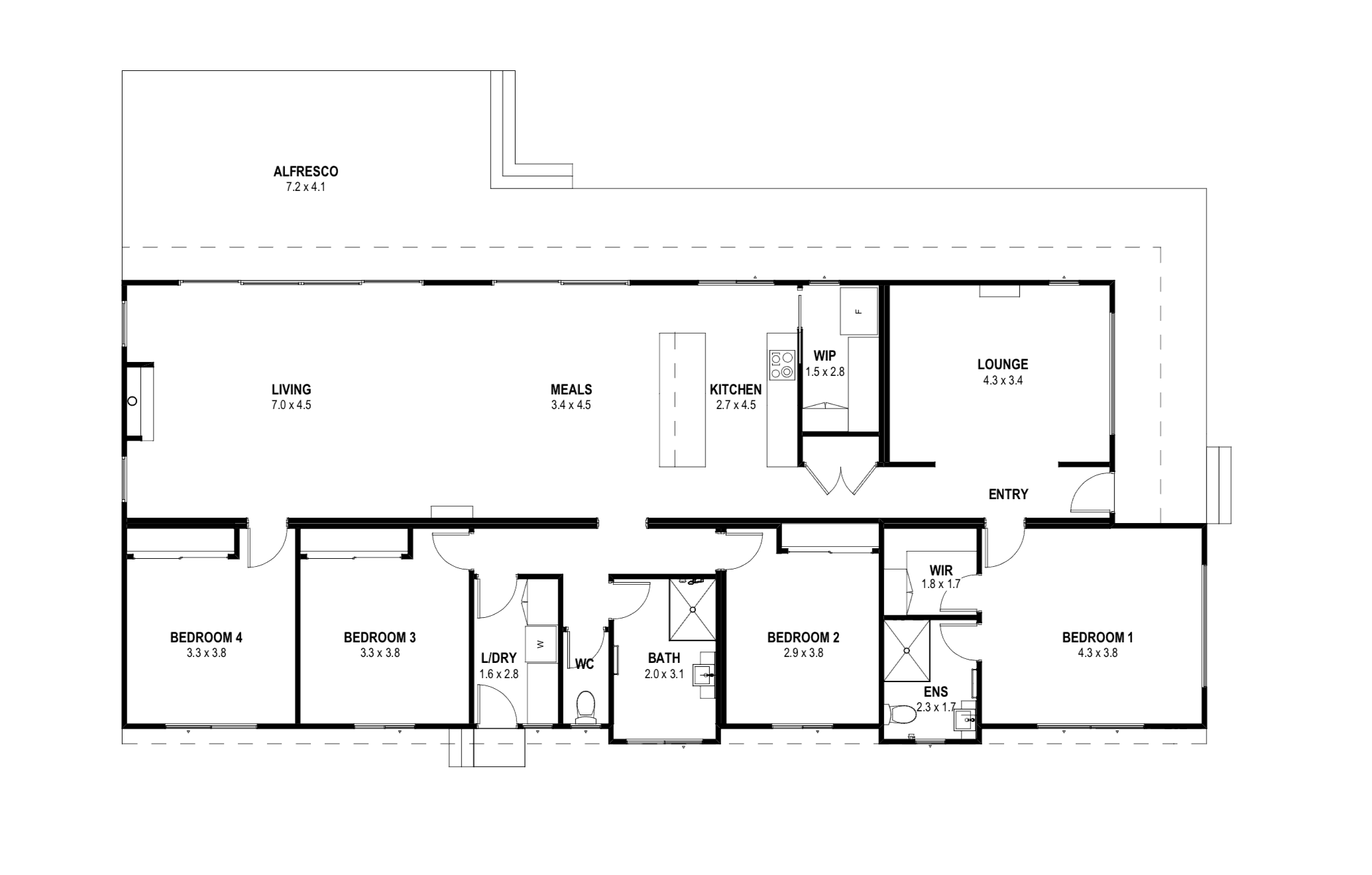
Design: Shoreham 19 (Modified)
View design
Bedrooms

4

Bathrooms

2

Area

178sqm

This modern and beautiful home on the Mornington Peninsula is built to suit the coastal surroundings and a relaxed lifestyle. Stylish yet highly liveable, it’s a wonderful example of a modular holiday rental that’s proving to be a hit on Airbnb.

{{item.name}}

Our clients opted for the Shoreham 19 design, modifying it to fit their requirements for a holiday home.

___

With 9ft ceilings included throughout the home, every room feels incredibly spacious.

___

The Cubehaus façade was chosen for its contemporary aesthetic and its harmonious integration with the coastal setting.

___

Sliding doors connect the living and dining areas to the decking and alfresco, enhancing the flow between indoor and outdoor spaces.

Four Bedroom - Rye
Four Bedroom - Rye
Four Bedroom - Rye

Ready to talk about your own project?

Get expert advice from one of our consultants to help you find your ideal home

Enter search term below