Frankston

Frankston

Victoria

Design: Custom
Bedrooms

4

Bathrooms

3

Area

182sqm

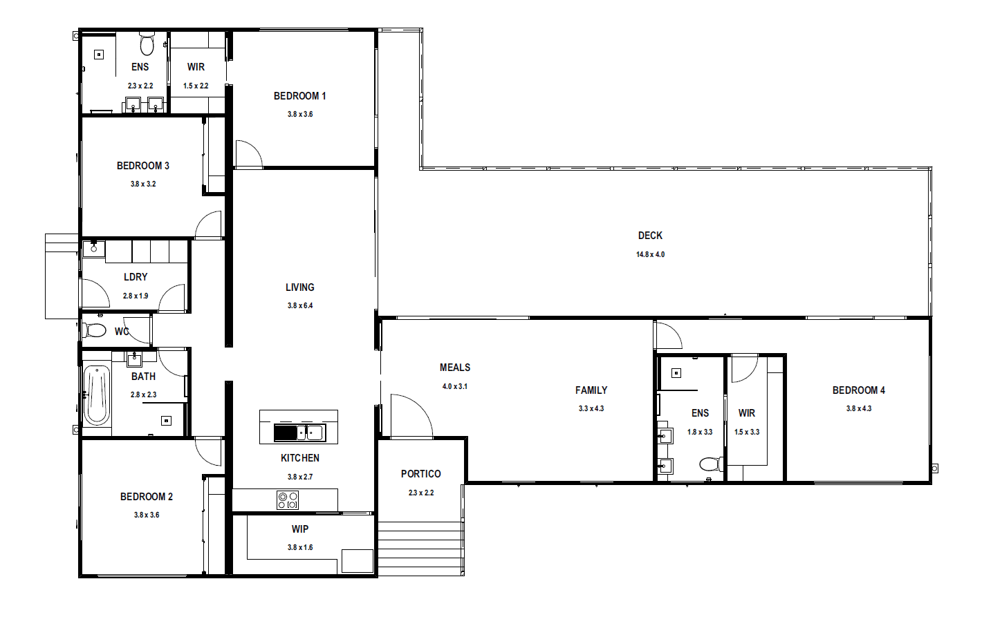
For their home on the Mornington Peninsula, our clients created a beautiful, modern coastal design with a strong emphasis on outdoor living. There’s plenty of room for the family to find their own space or gather together, and the elevated position allows for some amazing views.

{{item.name}}

This spacious family home has been custom designed to suit our clients sloping block and optimise the stunning views.

___

With its clean, sleek lines, the Cubehaus façade exudes modern simplicity, creating a bold architectural statement.

___

The adjacent living areas are angled to create subtle separation, offering a perfect balance of privacy and connection which is perfect for families with evolving needs.

Frankston
Frankston
Frankston

Ready to talk about your own project?

Get expert advice from one of our consultants to help you find your ideal home

Enter search term below