Tarrengower

Tarrengower

Victoria

Design: Newhaven 21 (Modified)
View design
Bedrooms

3

Bathrooms

2

Area

206sqm

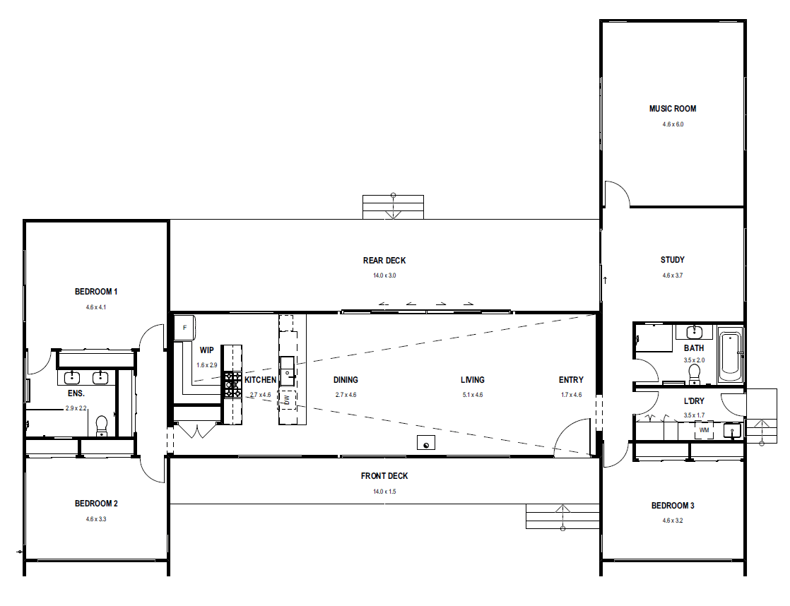
In the heart of Tarrengower, just 45 minutes from Daylesford in Victoria, our clients built their dream country home on their stunning acreage property. This beautiful three-bedroom, two-bathroom home seamlessly combines modern luxury with traditional country charm. Based on our popular Newhaven 21 design, it includes personalised modifications that suit our clients' lifestyle, making it the ideal rural retreat.

{{item.name}}

This project features our modern gable facade, featuring beautiful tall raked ceilings.

___

One of the key modifications our clients requested was to flip the standard Newhaven 21 floorplan.

___

Bedrooms one and two feature expansive gable picture windows, offering breathtaking views.

___

The exterior showcases Weathertex Weathergroove cladding in the colour Monument.

Tarrengower
Tarrengower
Tarrengower

Ready to talk about your own project?

Get expert advice from one of our consultants to help you find your ideal home

Enter search term below