Wollongong

Wollongong

New South Wales

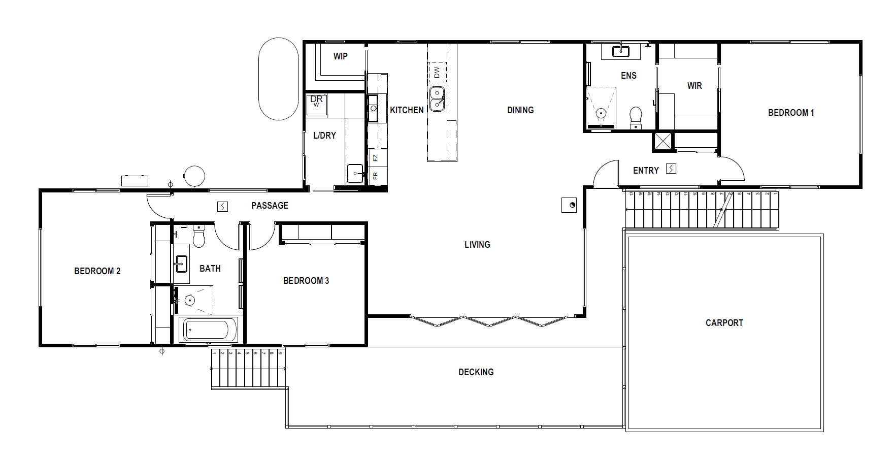
Design: Hampton 16 (Modified)
View design
Bedrooms

3

Bathrooms

2

Area

150sqm

Located in the suburban area of Cordeaux Heights, just west of Wollongong, NSW, this distinctive modular design was crafted to fulfill our client's vision for their dream home. They sought a solution that could effectively address the challenges of a narrow, sloping block. The modular construction process offered the perfect fit, with its flexibility, rapid timeline, and reduced on-site disruption thanks to the off-site build.

{{item.name}}

This Hampton 16 design has been efficiently modified by our design team to meet the specific needs of our clients and their site.

___

One of the key modifications our clients requested was elevating the home to maximise surrounding views.

___

We also incorporated a large outdoor decking area for entertaining and relaxation.

___

The exterior features a Cubehaus facade, defined by its tall ceilings and sleek roofline. 

Wollongong
Wollongong
Wollongong

Ready to talk about your own project?

Get expert advice from one of our consultants to help you find your ideal home

Enter search term below